Skip til hoved indholdet MinSide MinSide

5.612 kr. pr.md

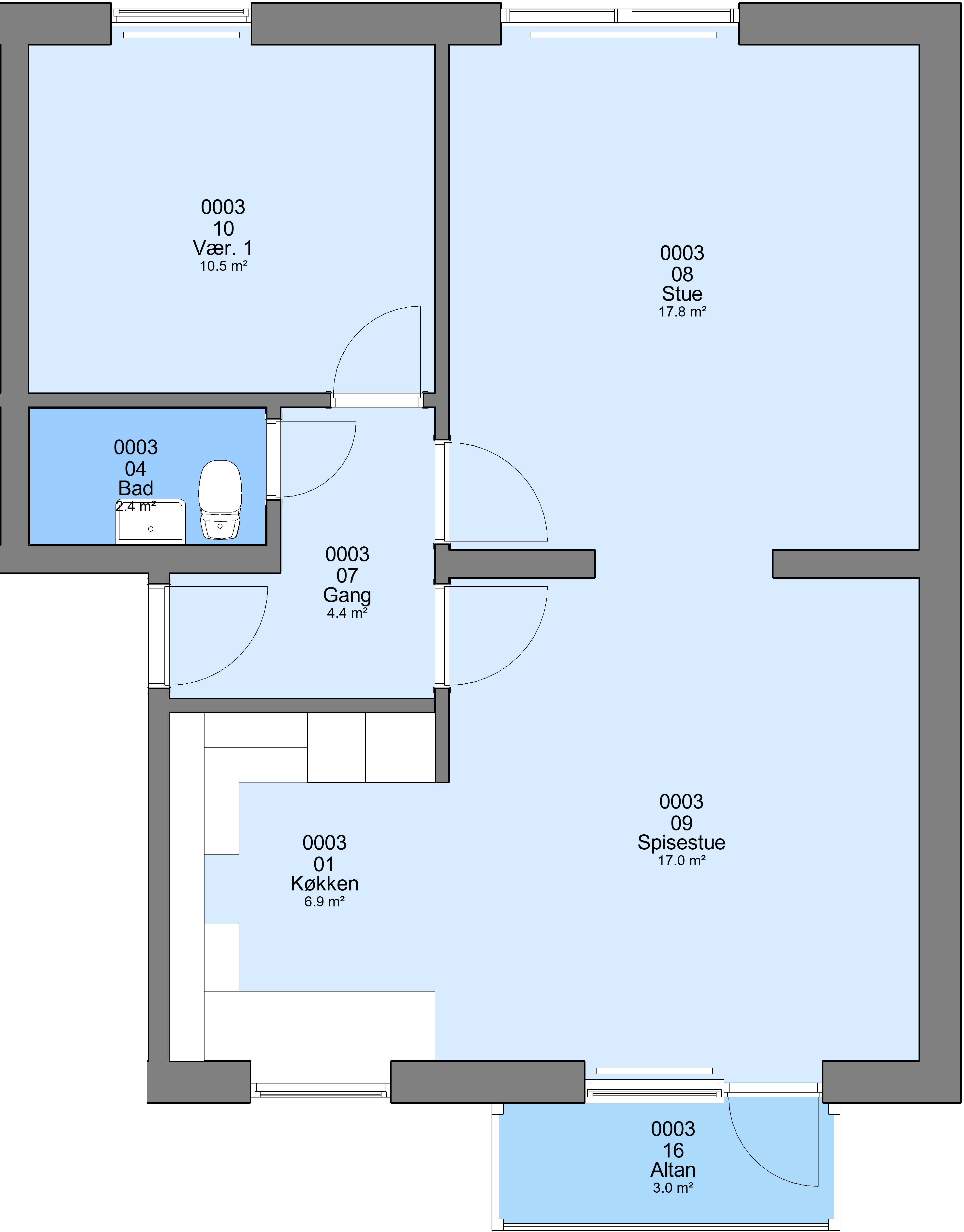
Etagebyggeri | Familieboliger | 3 vær. | 75 m² | Indskud: 15.000 kr. | A/C forbrug: 531 kr. | Ledig fra: 01-01-26

Afdelingen består af 10 senior boliger bygget som etagebyggeri. Boligerne er beliggende i Tarm bymidte. I kælderen er der depotrum tilhørende hver bolig, samt fælles cykelparkering og vaskeri. For at leje en bolig i denne afdeling, skal man være mindst 45 år. Derudover må der heller ikke være hjemmeboende børn.

Faciliteter

Altan/Have
Ja

Der er altan til boligerne.

Gangbesværet
Se mere

Nogle af boligerne ligger på 1. sal. Der er dørtrin i boligerne og der kan forekomme niveauforskelle ved indgangen.

El
Se mere

Som lejer skal du, i forbindelse med indflytning, selv vælge hvilken el-leverandør du ønsker.

Husdyr
Nej

Det er ikke tilladt at holde husdyr.

Hvidevarer
Ja

Der hører komfur, ovn og emhætte med til lejligheden.

Gildesal
Nej

Der er ikke gildesal i afdelingen.

Råderet
Nej

Der er ikke vedtaget mulighed for råderet i afdelingen.

TV
Ja

Der er installeret fibernet i boligen. På hjemmesiden rah-fiber.dk kan du se hvilke udbydere af internet og TV, du kan vælge imellem.

Vand
Læs mere

Udgiften til vand er inkl. i boliglejen.

Varme
Læs mere

Boligerne opvarmes med fjernvarme, som betales aconto til Boligforeningen.

Vicevært
Ja

Vicevært i afdelingen

Fællesvaskeri
Ja

Vaskeri i afdelingen

Affald
Læs mere

I Ringkøbing-Skjern Kommune skal man affaldssortere. Der er fælles affaldsstation, hvor madaffald og restaffald kan afleveres. Øvrigt affald afleveres på den kommunale genbrugsplads.

Ladestander
Nej

Der er ikke ladestander til elbil i afdelingen.

Bliv medlem

Ringkøbing-Skjern boligforening

Thorsvej 6, 6950 Ringkøbing

CVR nr. 44674610

Telefon: + 45 97321711
info@rsbolig.dk

Åbningstider

Administrationen
Mandag
kl. 10.00 - 17.00
Tirsdag til torsdagkl. 10.00 - 13.00
Fredagkl. 9.00 - 12.00

Åbningstider

Lokalkontoret i Tarm (Engholmvej 71)

Torsdagkl. 14.30 - 16.00


Genveje