Skip til hoved indholdet MinSide MinSide

8.148 kr. pr.md

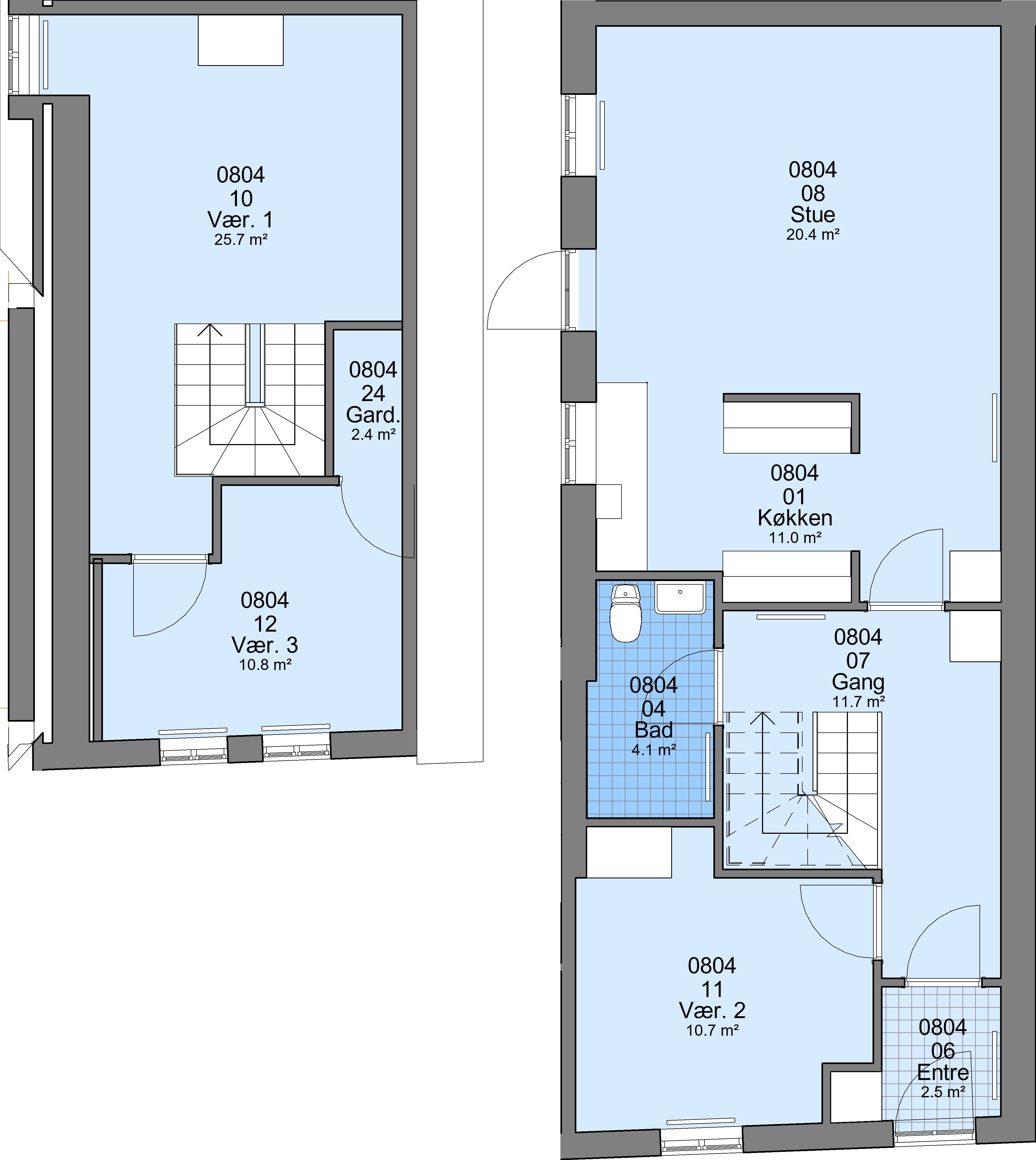
Rækkehus | Familieboliger | 3 vær. | 102.7 m² | Indskud: 15.700 kr. | A/C forbrug: 0 kr. | Ledig fra: 15-12-25

Afdelingen består af 14 rækkehuse beliggende centralt i Ringkøbing. Boligerne indrammer et hyggeligt gårdmiljø.

Faciliteter

Gangbesværet
Se mere

De fleste boliger har indvendig eller udvendig trappe.

El
Se mere

Som lejer skal du, i forbindelse med indflytning, selv vælge hvilken el-leverandør du ønsker.

Husdyr
Nej

Det er tilladt at have én hund eller én kat. En hund må som voksen ikke være større end en "Cocker Spaniel". Uanset størrelsen, er det ikke tilladt at have en "Kamphund".

Hvidevarer
Ja

Der hører komfur, ovn og emhætte med til lejligheden.

Råderet
Ja

Afdelingen har vedtaget, at man kan forny køkkener via råderetten.

TV
Ja

Der er installeret fibernet i boligen. På hjemmesiden rah-fiber.dk kan du se hvilke udbydere af internet og TV, du kan vælge imellem.

Vand
Læs mere

Udgiften til vand er inkl. i boliglejen.

Varme
Læs mere

Varme betales direkte til Ringkøbing Fjernvarme.

Vicevært
Ja

Vicevært i afdelingen

Fællesvaskeri
Ja

Vaskeri i afdelingen

Affald
Læs mere

I Ringkøbing-Skjern Kommune skal man affaldssortere. Der er fælles affaldsstation, hvor madaffald og restaffald kan afleveres. Øvrigt affald afleveres på den kommunale genbrugsplads eller de offentlige affaldsstationer i byen.

Ladestander
Nej

Der er ikke ladestander til elbil i afdelingen.

Bliv medlem

Ringkøbing-Skjern boligforening

Thorsvej 6, 6950 Ringkøbing

CVR nr. 44674610

Telefon: + 45 97321711
info@rsbolig.dk

Åbningstider

Administrationen
Mandag
kl. 10.00 - 17.00
Tirsdag til torsdagkl. 10.00 - 13.00
Fredagkl. 9.00 - 12.00

Åbningstider

Lokalkontoret i Tarm (Engholmvej 71)

Torsdagkl. 14.30 - 16.00


Genveje